lokalizacja

Emba, cypr

rynek

pierwotny

Powierzchnia

148,95 m²

pokoje

4

Sypialnie

3

łazienki

1+1+WC

590 000,0 

+ VAT

Avalon Valley — Willa nr 1: Luksusowy dom z prywatnym basenem

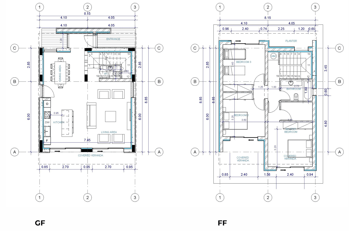
Ta wyjątkowa willa wolnostojąca to idealna propozycja dla osób poszukujących przestrzeni, komfortu i prywatności w prestiżowym projekcie Avalon Valley. Położona na działce o powierzchni 294 m², oferuje imponującą powierzchnię zabudowy 206,88 m², rozplanowaną na parter i piętro.

Willa posiada 3 sypialnie, w tym jedną z łazienką en-suite, dodatkową łazienkę główną oraz WC dla gości, co zapewnia wygodę całej rodzinie. Przestrzeń wewnętrzna o powierzchni 148,95 m² została zaprojektowana z myślą o funkcjonalności i elegancji. Dopełnieniem są werandy – zadaszona o powierzchni 33,93 m² oraz niezadaszona 24 m², które tworzą idealne miejsca do wypoczynku na świeżym powietrzu.

Największym atutem jest prywatny basen o wymiarach 3,5 x 7,6 m, który zapewnia mieszkańcom pełną swobodę relaksu i rekreacji. Willa posiada również dedykowane miejsce parkingowe oraz przestrzeń magazynową, co podkreśla jej praktyczny charakter.

Szczegóły willi:

  • Numer jednostki: 1

  • Typ: Dom wolnostojący z prywatnym basenem

  • Piętra: Parter + Piętro

  • Sypialnie: 3

  • Łazienki: 1

  • Łazienka en-suite: 1

  • WC dla gości: 1

  • Powierzchnia działki: 294 m²

  • Powierzchnia zabudowy: 206,88 m²

  • Powierzchnia wewnętrzna: 148,95 m²

  • Weranda zadaszona: 33,93 m²

  • Weranda niezadaszona: 24 m²

  • Miejsca parkingowe: 1

  • Basen: Prywatny (3,5 x 7,6 m)

Cena: 590.000 € (z VAT: 702.100 €)

Opcjonalne:

  • Pakiet z pełnym wyposażeniem: 35.000 €

  • System podgrzewania wody w basenie: 20.000 €

  • Ogrzewanie podłogowe: 25.000 €

 

Avalon Valley — Nowoczesna enklawa życia w sercu Emba

Avalon Valley to wyjątkowy projekt mieszkaniowy, który otwiera nowy rozdział współczesnej architektury w miejscowości Emba na Cyprze. Położony przy głównej drodze, lecz dyskretnie odsunięty od zgiełku, oferuje idealne połączenie miejskiej wygody z kameralnym spokojem.

Projekt wyróżnia się odważną estetyką – surowy beton architektoniczny i rzeźbione ceglane ekrany nadają mu charakterystyczny, miejski styl. Avalon Valley to 36 nowoczesnych domów oraz 2 bliźniacze budynki apartamentowe, w których znajduje się łącznie 32 mieszkania – od studio, przez apartamenty z jedną lub dwiema sypialniami.

Wybrane 7 willi posiada prywatne baseny, zapewniając mieszkańcom dodatkowy komfort i luksus. W centrum inwestycji znajduje się duży basen rekreacyjny oraz brodzik dla dzieci, a strefa wejściowa z recepcją, lobby i częścią wypoczynkową tworzy elegancką atmosferę powitania. Siłownia w części podziemnej wspiera aktywny i zrównoważony styl życia.

Dodatkowym atutem jest bliskość planowanego Metropolitan Private Hospital w Pafos – nowoczesnego centrum medycznego, które zapewni mieszkańcom dostęp do światowej klasy opieki zdrowotnej.

Avalon Valley to starannie zaprojektowana społeczność, która łączy nowoczesną architekturę, wysoką jakość życia i codzienną wygodę w jednej z najbardziej pożądanych lokalizacji w regionie Pafos.

Materiały wizualne, w tym obrazy 3D, mają charakter poglądowy i mogą różnić się od finalnego wyglądu inwestycji.