lokalizacja

Emba, cypr

rynek

pierwotny

Powierzchnia

49.55 m²

pokoje

2

Sypialnie

1

łazienki

1

286 000,0 

+ VAT

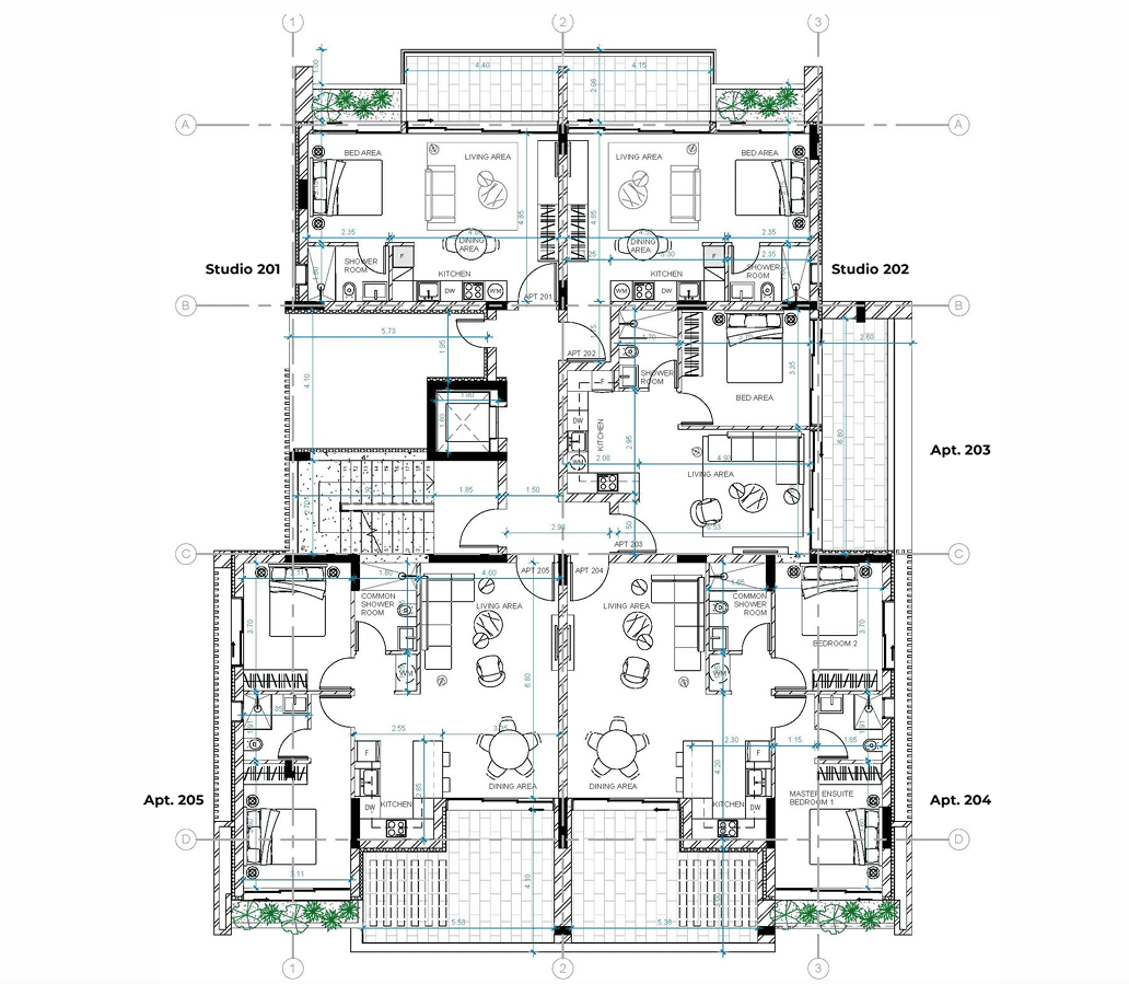
Apartament 203 – komfort i przestrzeń w Avalon Gardens 2

Ten wyjątkowy dwupokojowy apartament znajduje się na drugim piętrze w Bloku B prestiżowego kompleksu Avalon Gardens 2. To idealna propozycja dla osób poszukujących funkcjonalnego układu, dużego tarasu i dostępu do atrakcyjnych udogodnień.

Apartament oferuje:

  • Powierzchnię całkowitą: 64.73 m²

  • Powierzchnię wewnętrzną: 49.55 m²

  • Zadaszony taras: 15.18 m² – doskonały do wypoczynku na świeżym powietrzu

  • Dostęp do basenu wspólnego o powierzchni 72 m² + strefa dla dzieci 12 m²

  • Prywatne miejsce parkingowe

  • 1 łazienkę z wysokiej klasy wykończeniem

Wykończenie apartamentu obejmuje marmurowe podłogi, granite blaty, drewniane podłogi, podwójne przeszklenia, a także przygotowanie pod klimatyzację i systemy energooszczędne.

Cena: €286000 + VAT

Opcjonalnie – Pakiet pełnego wyposażenia: €25000

 

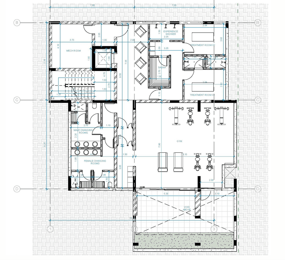
Avalon Gardens 2 – Apartamenty w sercu Emba

Avalon Gardens 2 to wyjątkowy kompleks mieszkaniowy położony w malowniczej miejscowości Emba, który łączy komfort, elegancję i bliskość natury. Projekt obejmuje:

  • 12 przytulnych studiów

  • 21 przestronnych apartamentów

  • 15 luksusowych willi

Obecnie w sprzedaży pozostały już tylko 2 apartamenty – pozostałe zostały wyprzedane lub zarezerwowane, co najlepiej pokazuje ogromne zainteresowanie inwestycją. To idealna propozycja dla rodzin oraz grup przyjaciół, którzy cenią sobie przestrzeń, funkcjonalność i estetykę. Każdy z nich oferuje:

  • Przestronne strefy dzienne z w pełni wyposażoną kuchnią

  • Prywatne balkony lub patio z widokiem na otaczającą zieleń

  • Wysokiej klasy wykończenia, w tym marmurowe podłogi i granitowe blaty

  • Naturalne drewniane podłogi

  • Nowoczesne systemy sanitarne oraz przygotowanie pod klimatyzację

  • Energooszczędne rozwiązania, w tym system solarny i ogrzewanie podłogowe (opcjonalnie)

Dodatkowym atutem kompleksu jest basen wspólny – idealne miejsce na relaks w promieniach śródziemnomorskiego słońca.

W pobliżu znajdują się wszystkie niezbędne udogodnienia:

  • Plaża – 3.4 km

  • Restauracja – 1.4 km

  • Supermarket – 1.3 km

  • Szkoła – 1 km

  • Apteka – 900 m

  • Przychodnia lekarska – 2.7 km

  • Lotnisko – 17 km

To wszystko czyni Avalon Gardens 2 doskonałym wyborem zarówno na wakacje, jak i do zamieszkania na stałe.

Materiały wizualne, w tym obrazy 3D, mają charakter poglądowy i mogą różnić się od finalnego wyglądu inwestycji.