lokalizacja

Paphos, cypr

rynek

pierwotny

Powierzchnia

205.74 m²

pokoje

6

Sypialnie

4

łazienki

4+WC

1 350 000,0 

+ VAT

Almond Tree Villas – Rezydencja marzeń z basenem na dachu

Ta wyjątkowa rezydencja z projektu Almond Tree Villas to idealne połączenie luksusu, elegancji i funkcjonalności. Dzięki prywatnemu basenowi na dachu, panoramicznym widokom na miasto i morze oraz pełnemu wyposażeniu w cenie, stanowi doskonałą propozycję dla osób poszukujących prestiżowej nieruchomości w sercu Paphos na Cyprze.

Szczegóły nieruchomości:

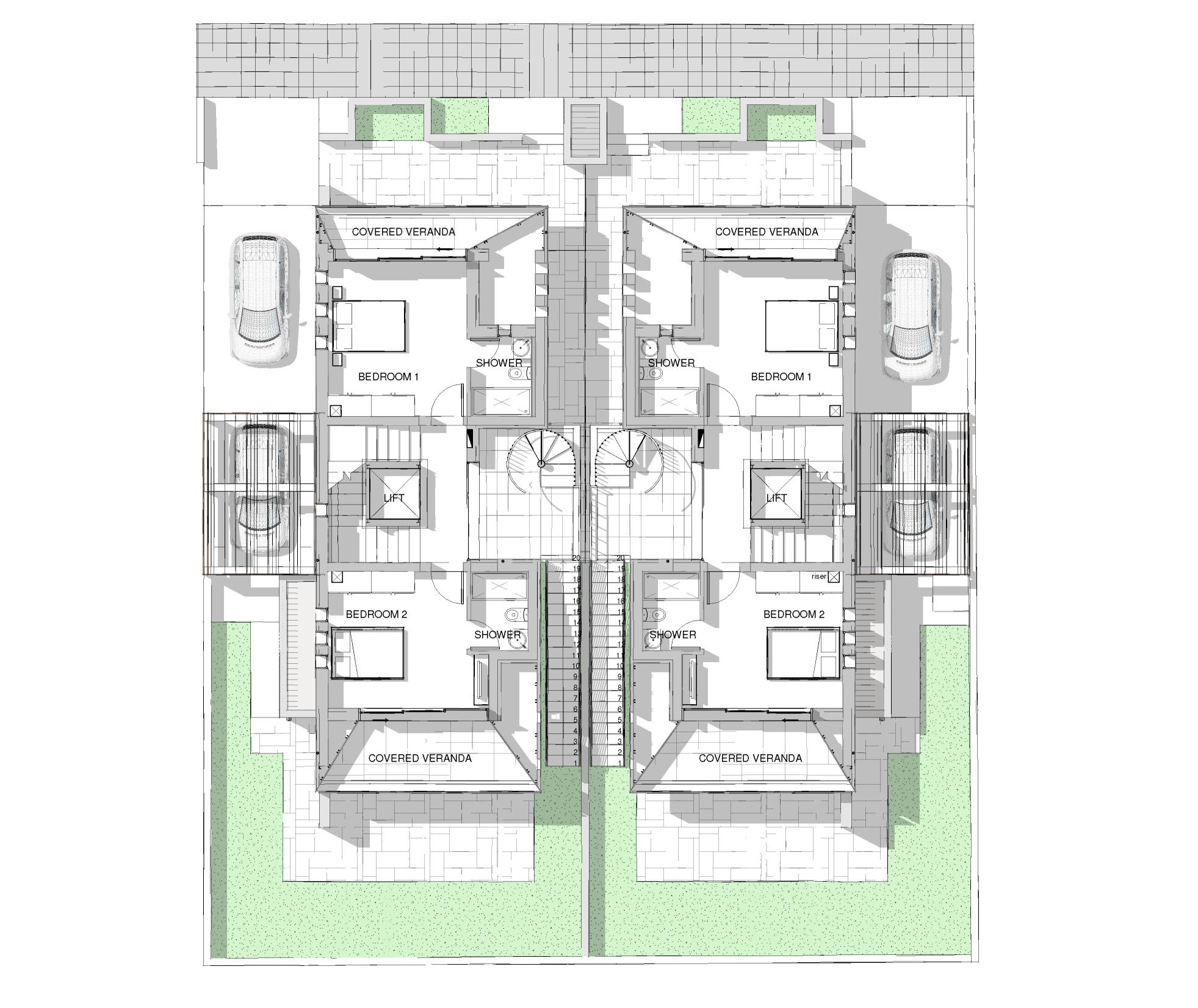
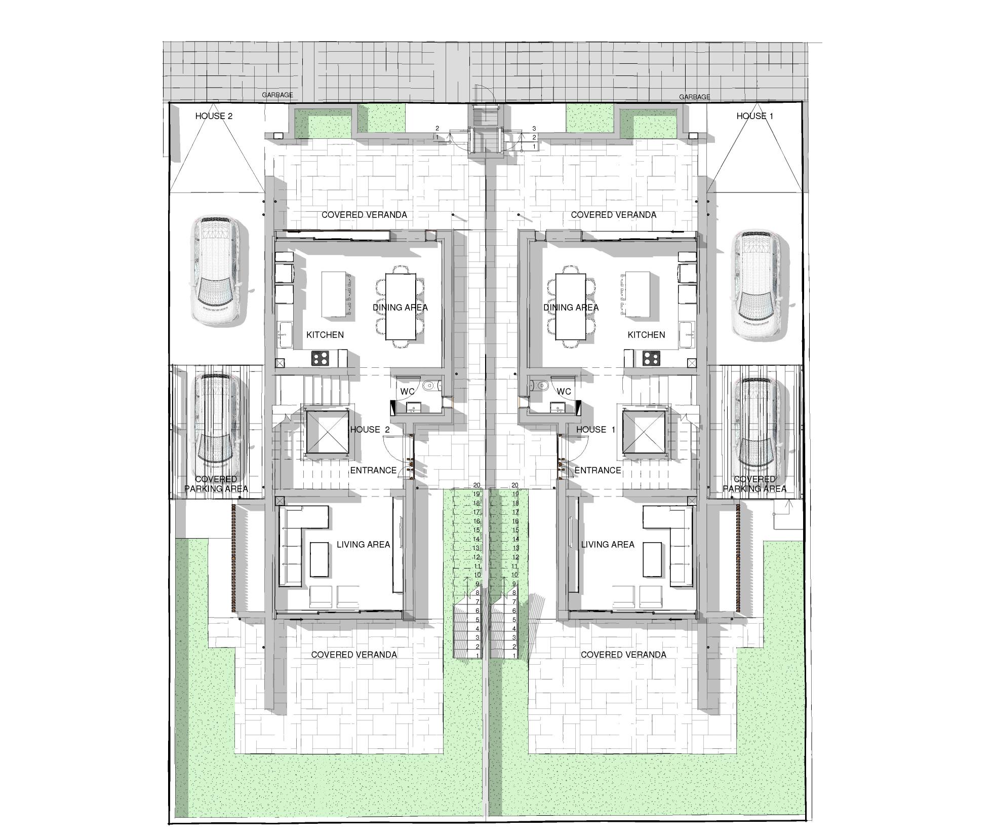
  • Poziomy: Parter + Pierwsze piętro + Drugie piętro + Dach

  • Liczba sypialni: 4

  • Łazienki en-suite: 4

  • Toaleta dla gości: 1

  • Liczba pokoi: 6 (Kuchnia z jadalnią, Pokój dzienny, 4 sypialnie)

  • Powierzchnia działki: 255 m²

  • Całkowita powierzchnia zabudowy: 305.65 m²

  • Powierzchnia wewnętrzna: 205.74 m²

  • Powierzchnia zadaszonego tarasu: 50.61 m²

  • Powierzchnia dachu: 49.3 m²

  • Miejsca parkingowe: 2

  • Basen: Prywatny na dachu

  • Winda: Prywatna

  • Wyposażenie: Pełne wyposażenie w cenie

Cena: 1.350.000 € + VAT

 

Almond Tree Villas – Luksus w sercu Paphos

Almond Tree Villas to wyjątkowy projekt willowy zlokalizowany w samym centrum Paphos, na południowo-zachodnim wybrzeżu Cypru. To miejsce, gdzie nowoczesna architektura spotyka się z komfortem codziennego życia, tworząc idealną przestrzeń do zamieszkania, wypoczynku i inwestycji.

Każda z willi została zaprojektowana z dbałością o detale, wykorzystując wysokiej jakości materiały takie jak kamień, beton architektoniczny i drewno, co zapewnia trwałość oraz elegancki wygląd. Projekt obejmuje trzy poziomy, na których znajdują się cztery sypialnie, cztery łazienki oraz prywatna winda, gwarantująca wygodę mieszkańcom.

Punktem kulminacyjnym każdej willi jest ogród na dachu z basenem i strefą BBQ – idealne miejsce do relaksu i spotkań towarzyskich, z panoramicznym widokiem na miasto i morze.

Lokalizacja projektu to jego ogromny atut – zaledwie 200 metrów od Ratusza, szkół, urzędów i głównego placu Paphos. W bezpośrednim sąsiedztwie znajdują się również plaża (3 km), restauracje (600 m), supermarket (160 m), apteka (500 m), lotnisko (14 km) i wiele innych udogodnień.

Wnętrza willi są przestronne, stylowo wykończone i zaprojektowane z myślą o pełnej prywatności. Połączenie doskonałej lokalizacji, nowoczesnego designu oraz komfortowych rozwiązań sprawia, że Almond Tree Villas to idealne miejsce do życia na Cyprze – zarówno dla rodzin, jak i inwestorów szukających nieruchomości premium.